CENTRE COMMERCIAL

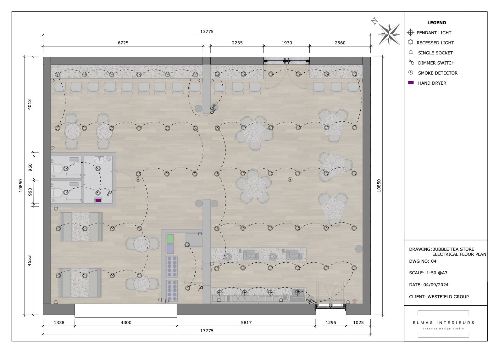
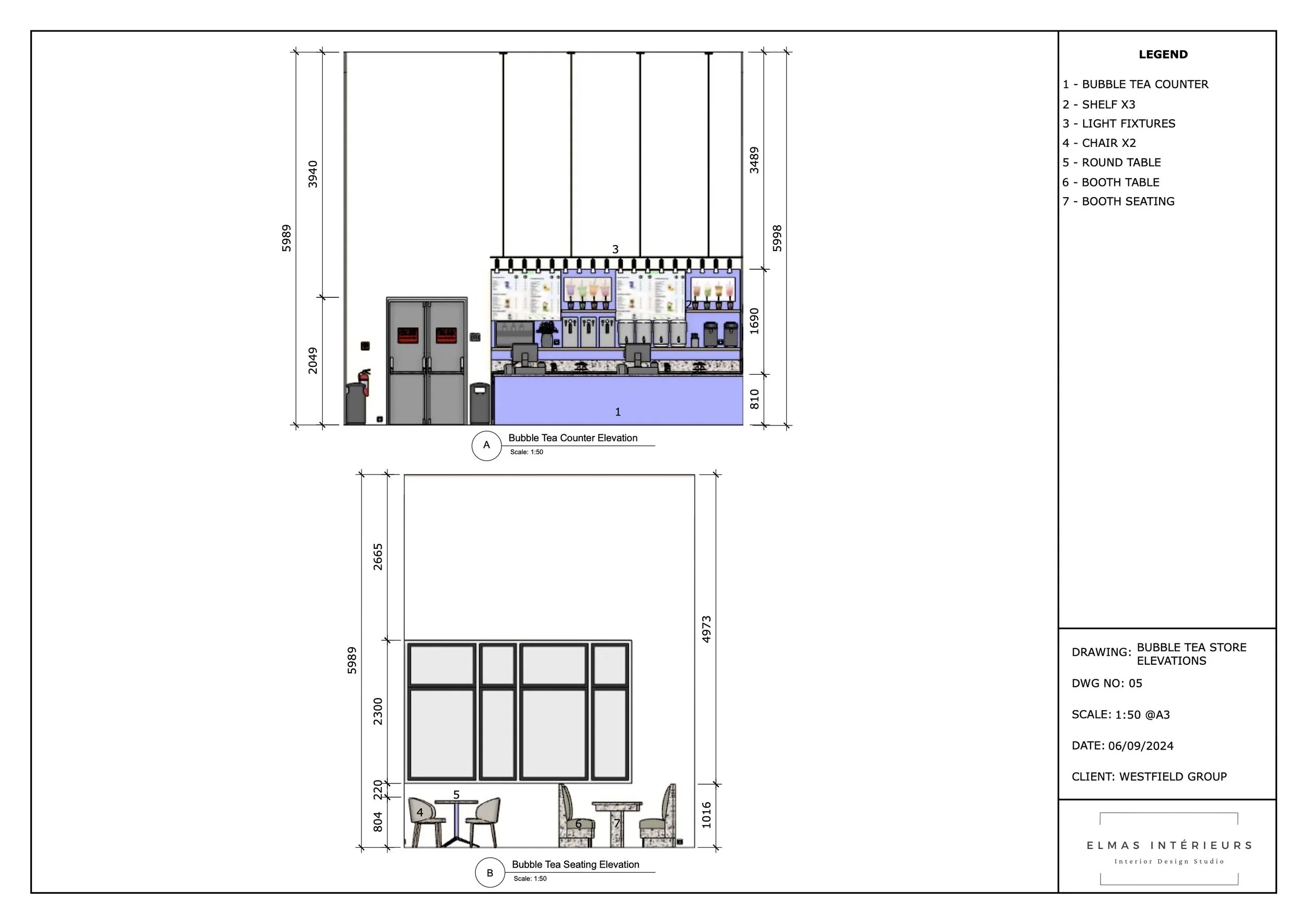
Ce projet transforme une ancienne usine en centre commercial contemporain, tout en préservant son caractère industriel grâce à la restauration de sa structure métallique et de son plafond voûté.

Le concept architectural s’inspire des couleurs rétro, qui apportent une touche de fraîcheur et de vitalité à l’espace. Le design vise à créer un espace lumineux, accueillant et vivant, propice à la détente et à la convivialité.

Le centre comprend une variété d’espaces : une galerie, un magasin de vêtements, une garderie, un bubble tea store, un food court avec bar, et des sanitaires publics.

Précédent
Précédent

CHAMBRE PROVENÇALE

Suivant
Suivant

SALON DURABLE